・賃貸実績 令和7年12月まで月額賃料65,000円
・生活便利な好立地!
スーパーいなげや 約700m
コピオ 約800m ノジマ 約600
・2022年2月 給湯器、洗面化粧台交換
・即入居可能です!
| 物件種目 | 中古戸建て | 価格 | 880万円 |
| 物件名 | 愛川町中津 即入居可能物件 | ||
| 所在地 | 神奈川県愛甲郡愛川町中津21675-3 | ||
| 交通 | 小田急小田原線「本厚木」駅 バス23分「春日台1丁目」停歩9分 | ||
| 小学校区 | 第二小学校 | 中学校区 | 愛川中原中学校 |
| 取引態様 | 媒介 | 土地面積 | 132.8m2 |
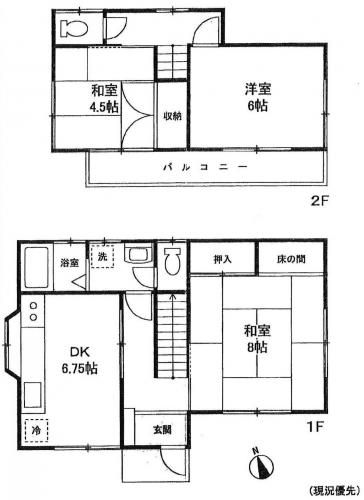
| 建物面積 | 62.93m2 | 間取り | 3DK |
| 建物構造 | 木造 | 建物規模 | 2階建て |
| 築年月 | 昭和58年1月 築 | 接道状況 | 二方(除角地) |
| 接道 | 南側に幅員4.5mの公道に2m接道 北側に幅員3.9m9.7m接道 | 土地権利 | 所有権 |
| 都市計画 | 市街化区域 | 用途地域 | 第一種中高層住居専用地域 |
| 地目 | 宅地 | 建ぺい率 | 60% |
| 容積率 | 200% | 現況 | 空家 |
| 引渡時期 | 即入居可 | 引渡条件 | 現況渡し |
| 設備・条件 | プロパンガス・上水道・下水道 | ||
| 備考 | ・現況売買
・契約不適合責任免責 ・隣地水道管が敷地を通過しています。 ・境界非明示 ・越境物有り(老朽化によるブロック、フェンス) ・空中越境有り(電線の越境及び被越境) ・土砂災害警戒区域 ・急傾斜地の崩壊(警戒区域) ・北側道路は建築基準法上の道路に該当しない通路 ・上記賃貸実績は参考で将来にわたり、確実に得られることを保証するものではありません。 |
||
| お問い合わせ番号 |
2381 ※お問い合わせの際にこちらの番号をお伝えください |
||
※1 ボーナス返済月の加算額ではありません。お借入予定額の50%以下をご入力ください。
※2 初期値で選択されている金利は、一般的な金融機関の変動金利を元にした目安値です。
※シミュレーションでの結果は、あくまでも目安で、概算になります。実際にローン契約をする際は、詳細を金融機関にご確認下さい。
※実際のローン契約時には諸費用・税金(手数料や印紙税、保証料など)が別途かかりますので、契約の際にご確認ください。
※シミュレーションを利用し、それが原因で利用者が受けたいかなる損害についても当社は一切責任を負いません。
あらかじめご了承ください。